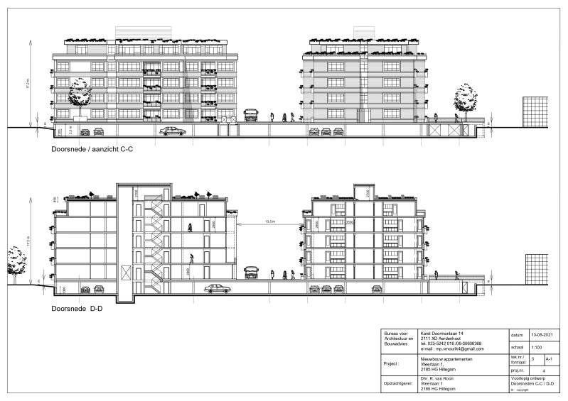
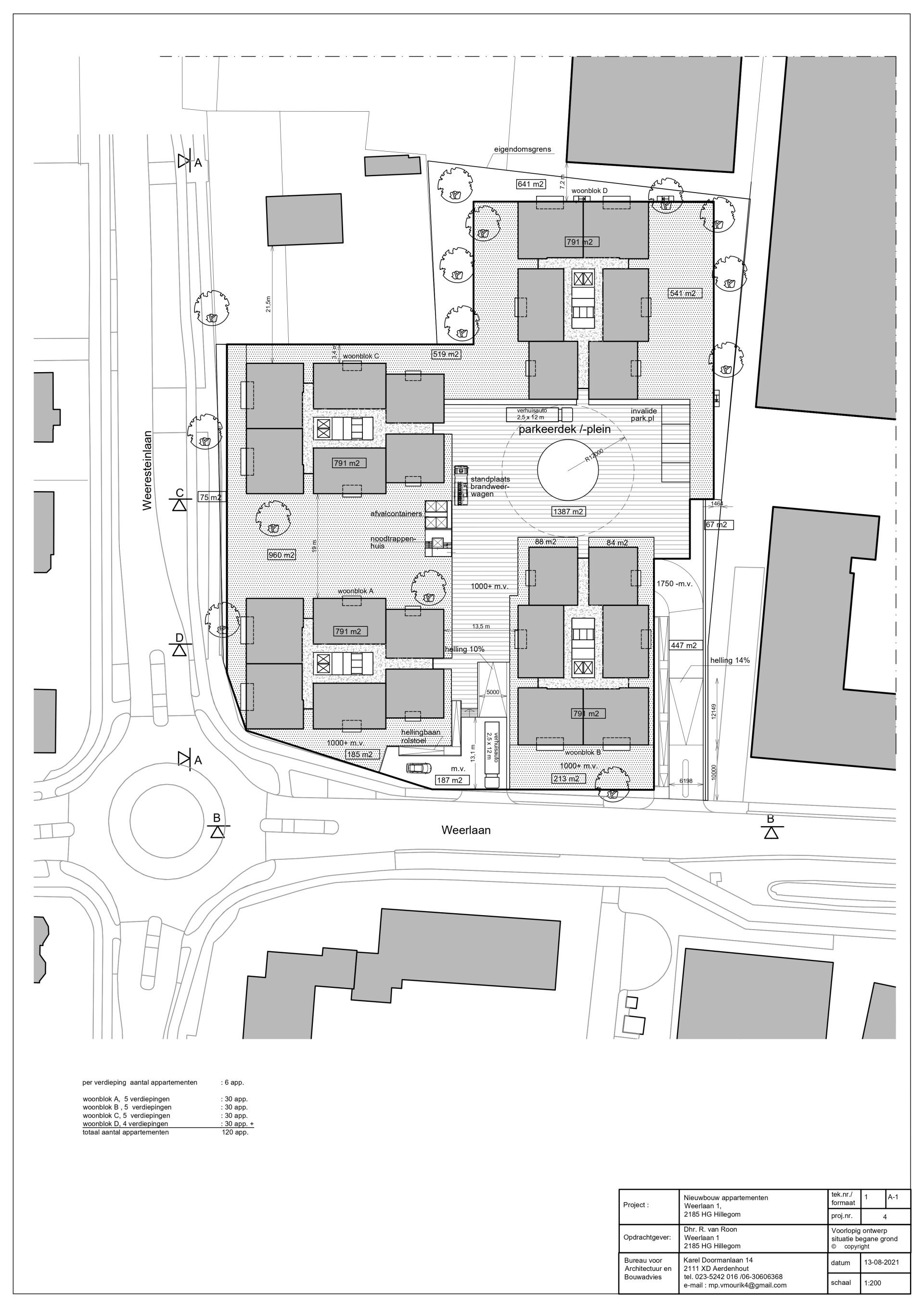
Stedenbouwkundig plan, met vier woonblokken op een half verdiepte parkeergarage . Parkeerdek dient als sociale ontmoetingsplaats en is ook toegankelijk voor dienstenverkeer, zoals verhuisauto's, vuilnisauto's, brandweer, ambulances, post, rolstoelgebruikers via een hellingbaan, etc.

Rondom de bouwblokken ruime groenvoorzieningen, met regenwater buffering t.b.v. recreatie, speelgelegenheid kinderen, voorkomen van hittestress, etc. het aanbieden van nestkasten voor vogels en vleermuizen, etc. Hierdoor kan het parkeerdek dienen als biotoop in combinatie met  andere groengebieden in de gemeente, zie toelichting.   

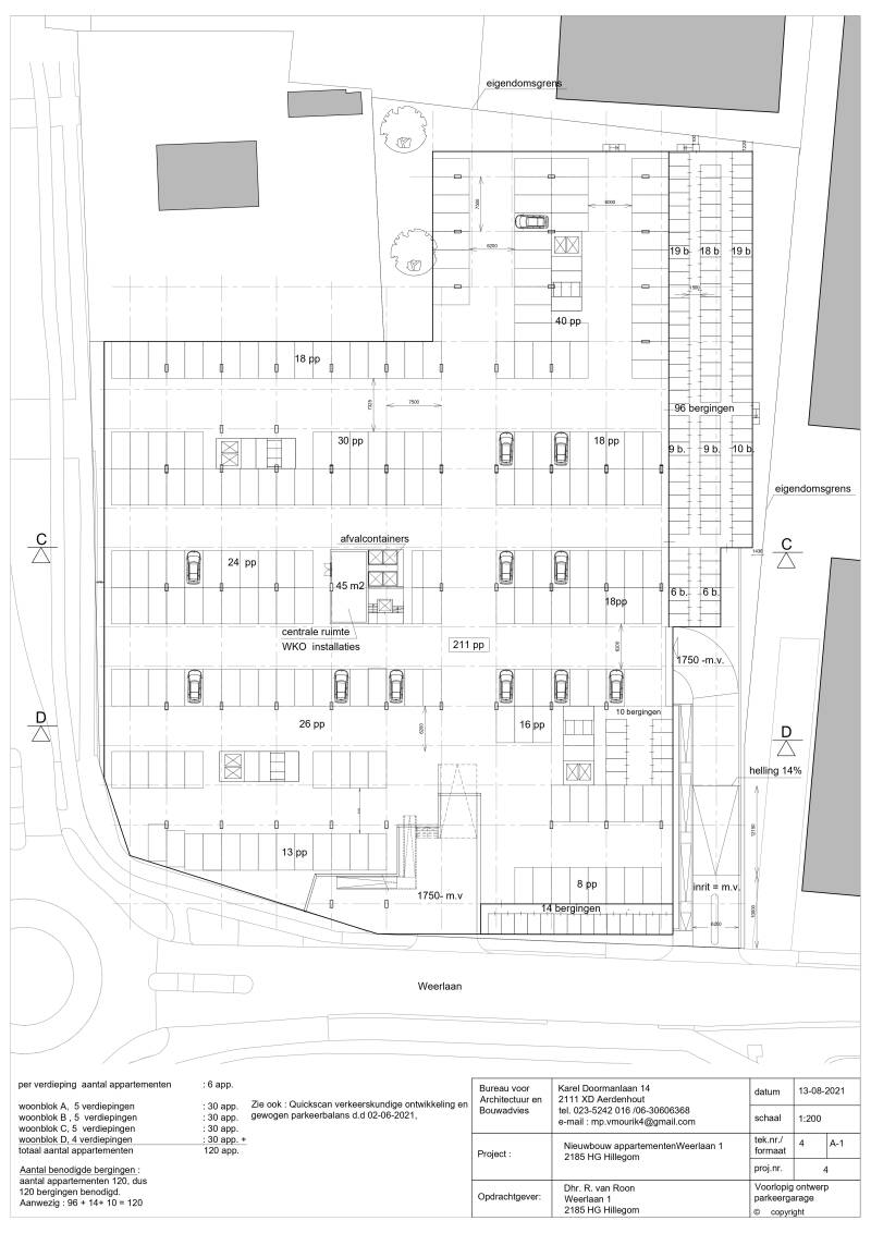
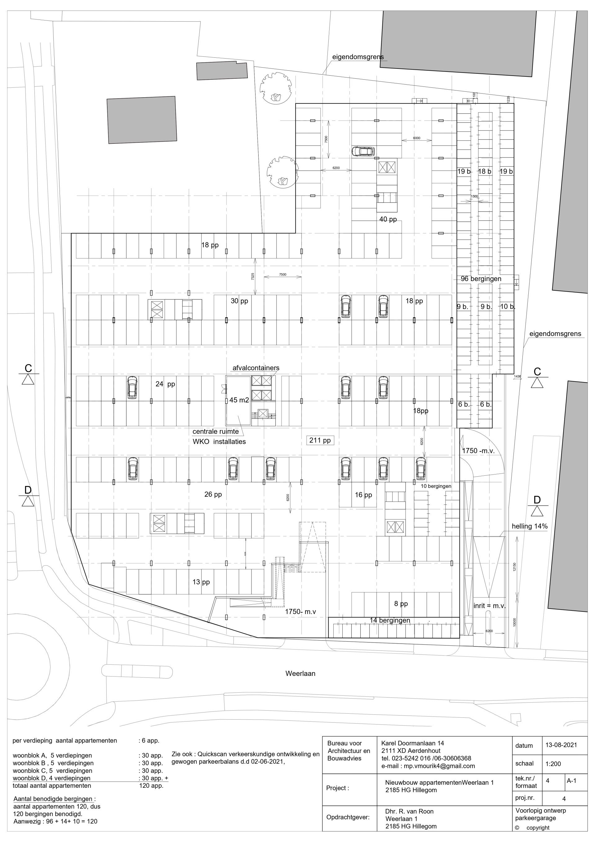
Toegankelijkheid-ontsluiting parkeerdek via ingang Weerlaan en trappenhuis naast de vuilcontainers.  

Half verdiepte parkeergarage  met bergingen. Naast de afvalcontainers is een centraal trappenhuis naar de bovenzijde van het parkeerdek . Rekening gehouden met integrale toegankelijkheid invaliden, rolstoelgebruikers. Volgens verkeerskundige berekening is er voldoende capaciteit van bestaande wegen t.b.v.  ontsluiting van de parkeergarage.  Het aantal parkeerplaatsen voldoet aan de parkeernormen van de gemeente en is berekend d.m.v. een parkeerbalans.  

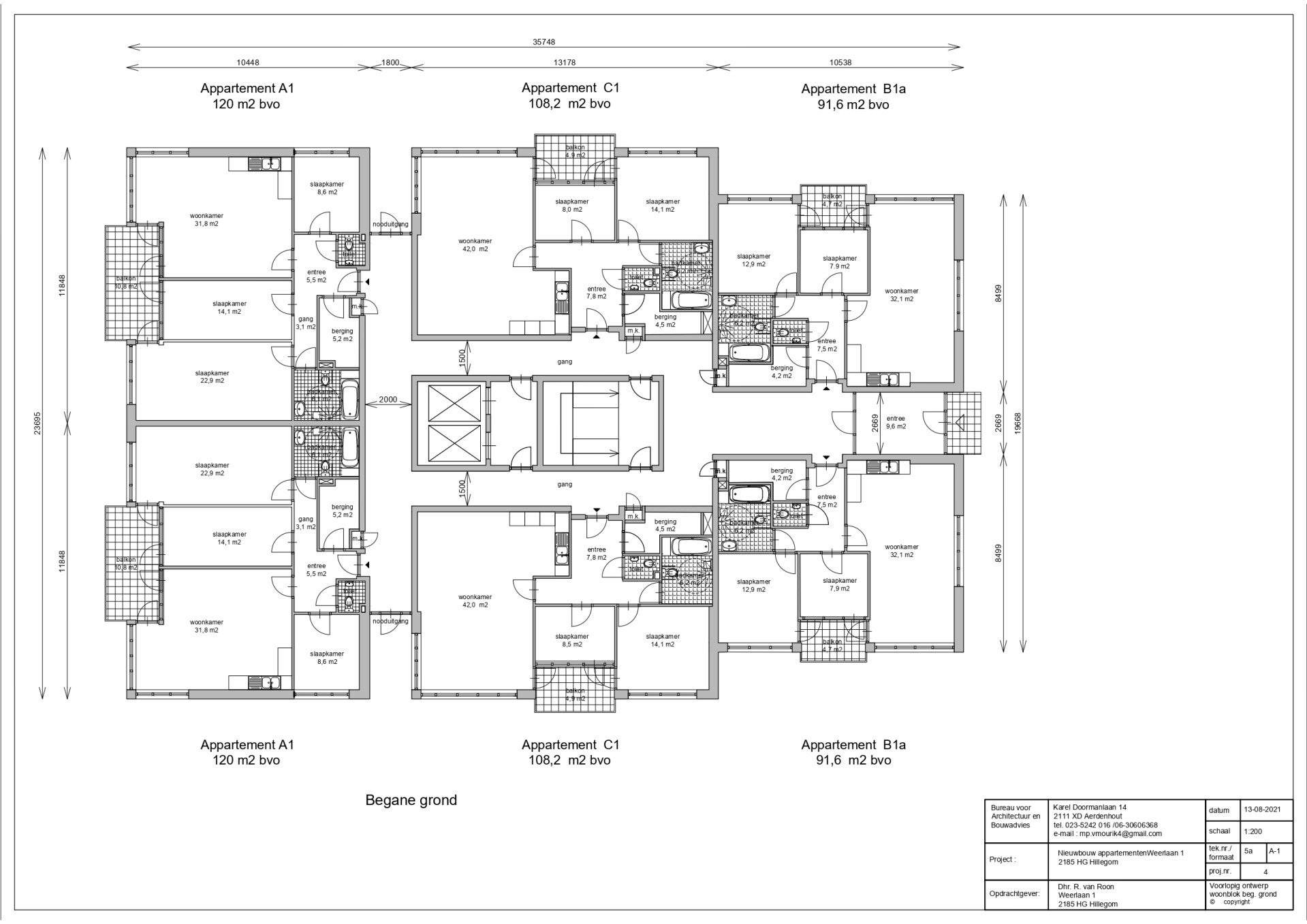
Vanwege de unieke locatie, de aanleg van een half verdiepte parkeergarage  is voorlopig gekozen voor luxe- en middel dure appartementen.  Mogelijkheden van sociale  woningbouw zal apart onderzocht moeten worden.   Een alternatief voor sociale woningbouw kan gezocht worden op de naast gelegen terreinen.   

Maak jouw eigen website met JouwWeb