Pakhuizen Oude Braak

In de strijd van de gemeente Amsterdam tegen verloedering in de binnenstad, werd ook de steeg Oude Braak aangepakt. Vervallen pakhuizen (in dit geval Rijksmonumenten!) werden geschikt gemaakt voor bewoning, waardoor de sociale veiligheid zeer verbeterde.

Wij ontwierpen in
samenwerking met Bouwfonds der Nederlandse Gemeenten een bouwplan, bestaande uit:

-   11 premie C koopappartementen

-   1 riant cascoappartement met garage.

De monumentale pakhuizen "Weedaschton" en Keizerskroon" en een vroegere "paardenstal"

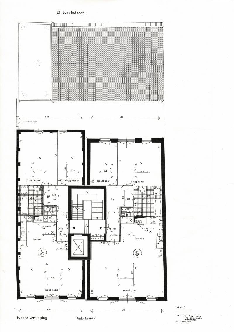
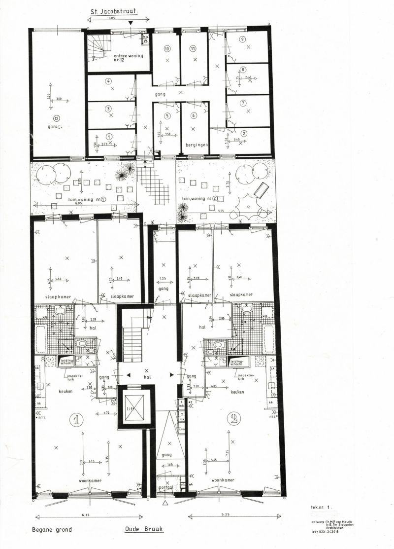
Tussen de bouwmuren van de beide pakhuizen is een trappenhuis met lift ontworpen ter ontsluiting van  11 appartementen.

Voorgevels

Achtergevel (deze is voorzien van een nieuwe pleisterlaag in blokverband vanwege de slechte staat van de bakstenen)

Sfeervol interieur, waarbij het robuuste karakter van de pakhuizen tot uiting komt.

Gerestaureerde voorgevels, waarbij het monumentale karakter zoveel mogelijk is bewaard.

Maak jouw eigen website met JouwWeb