Stedenbouwkundige situatie : de gemeente stelde als eis, dat er een vrije doorzicht vanuit het Prinsen Bolwerk naar de achterliggende voormalige stadswal zou zijn. Aan de linkerzijde van het perceel bevindt zich een monumentaal pand, door architect Zocher ontworpen. Rechts is een hotel ontworpen, met een ondergrondse parkeergarage, zie ook de onderstaande tekeningen.
Begane grond, met hotelkamers en restaurant.
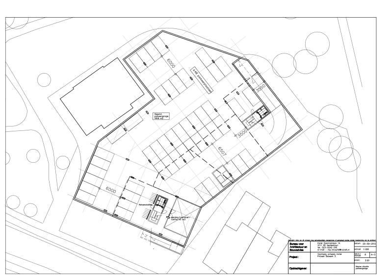
Parkeer garage.
 
                     
                     
                     
                     
                     
                     
                     
                     
                     
                     
                    
Maak jouw eigen website met JouwWeb